こんにちは!大阪市で「ワクワクできる家づくり」を手がけるWAKUWAKUハウスです♪
当社の強みのひとつとして、「設計・間取りの提案力」が挙げられます。
お客様から詳しく(そして楽しく♪)ヒアリングさせていただいた内容を元に、土地の広さや形状を最大限活かしながら、将来を見据えた設計・間取りのご提案を心がけています。
今回ご紹介するのは、32坪・2階建ての二世帯住宅のお家です。
ご主人と奥様、お子さま1人の3人家族と、奥様のご両親がお住まいになります。
親世帯は1階が居住スペース。
ものが多い親世帯のために、寝室に大容量の収納を確保。ウォークインスタイルなので、物の出し入れがしやすくなっています。
また、「ガーデニングができる場所が欲しい」というご希望を叶えるため、リビングから外に出て土いじりができるスペースをつくりました。
外にはお子さま世帯の3台の自転車、そして車2台が停められるスペースを確保しました。
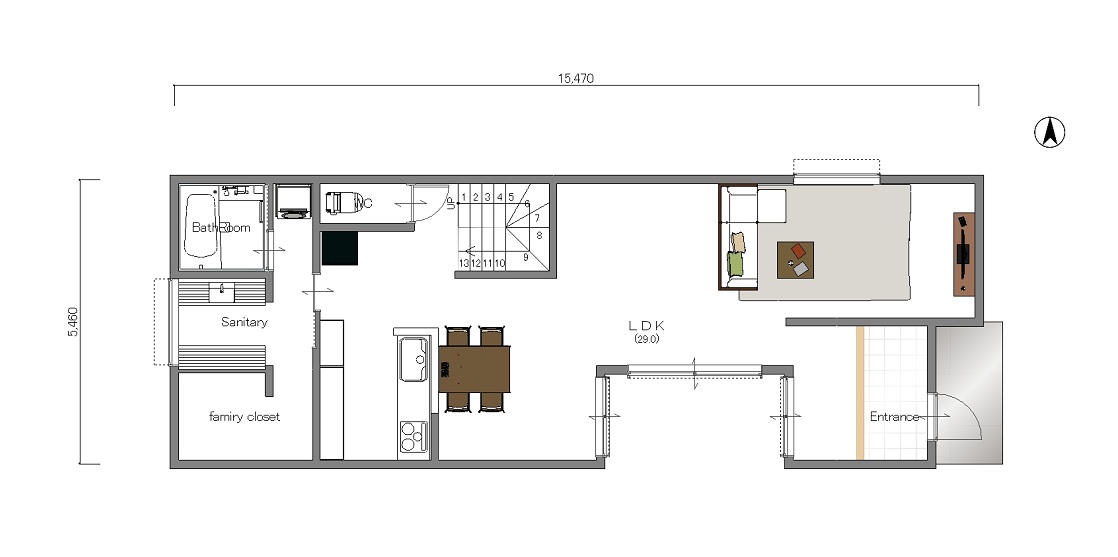
2階が子世帯の居住スペース。
ご両親と一緒に食事をすることも多いということで、最大5名が一緒に食卓を囲めるダイニングに。寝室と子ども部屋、そしてリビングにもしっかり収納を設けて、すっきり片付く空間にしました。
2階のリビング・水廻りを1階と同じ配置にすることで、音が下に響いても迷惑にならないように工夫しています。
ご夫婦は共働きで、帰宅後のお子さまはおじいちゃん・おばあちゃんと一緒にいることも多いとのこと。時に一緒に食卓を囲みながら、3世代で仲良く暮らしてほしいですね♪

