こんにちは!大阪市で「ワクワクできる家づくり」を手がけるWAKUWAKUハウスです♪
当社の強みのひとつとして、「設計・間取りの提案力」が挙げられます。
お客さまから詳しく(そして楽しく♪)ヒアリングさせていただいた内容を元に、土地の広さや形状を最大限活かしながら、将来を見据えた設計・間取りのご提案を心がけています。
今回ご紹介するのは、小学生の男の子2人と暮らすAさんが建てたお家です。
「そろそろ、この暮らしから卒業したい」——
お子さまの成長とともに、そう思うようになったシングルマザーのAさん。今の暮らしに寄り添いながら、お子さまたちの成長、そしてその先の未来まで見据えた“可変性のある家づくり”をご紹介します。
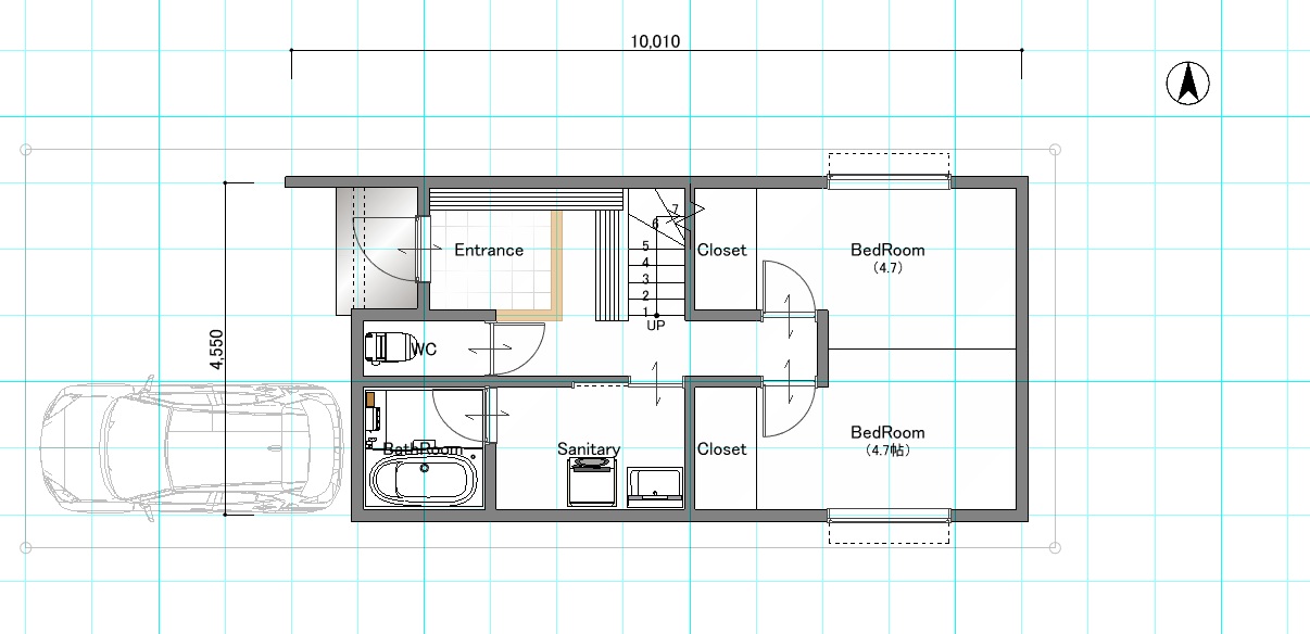
敷地面積は約30坪。建物は約27坪の2階建てです。注目ポイントはまず1階。広めの玄関は、部活帰りのお子さまたちがドカッと荷物を置いても余裕がある設計に。そのまま洗面所へ直行できる動線で、汚れを家の中に持ち込まない工夫も。
さらに、洗面脱衣室は室内干しができるゆったりサイズ。急な雨や夜間の洗濯にも対応できる、日々の暮らしを支える安心の空間です。
1階の2つの洋室は、今は兄弟が一緒に使う子ども部屋。左右対称でクローゼットも完備。将来的に仕切り壁(通称:未来壁!)を追加して、個室として使うことが想定されています。
さらに、お子さまが成長して巣立ったあとは、今の子ども部屋をお母さまの居室として使う可能性も。そうした未来も見越して、お風呂やトイレなどは1階に集約させています。
2階のLDKは14.5帖。窓から光がしっかり入る明るい空間で、コンパクトながらもソファ&ダイニングどちらも配置できる、落ち着いた家族の時間が流れるリビングになっています。
家を建てることは、勇気のいる決断かもしれません。特に子育てをひとりで担いながら、「自分たちだけの場所」をつくるという選択は、簡単なことではないはずです。
でもこのお家には、今の暮らしを支える工夫と、未来を想うやさしさが、たくさん詰まっています。
「私でも家を建てられるかもしれない」
そんなふうに、誰かの背中を押せる事例になれば幸いです。

