こんにちは!大阪市で「ワクワクできる家づくり」を手がけるWAKUWAKUハウスです♪
当社の強みのひとつとして、「設計・間取りの提案力」が挙げられます。
お客さまから詳しく(そして楽しく♪)ヒアリングさせていただいた内容を元に、土地の広さや形状を最大限活かしながら、将来を見据えた設計・間取りのご提案を心がけています。
今回ご紹介するのは、当社の規格住宅「ホワイトプラン」の一例です。中庭・吹抜け・スムーズな家事動線といった“欲しい機能”をしっかり備えながら、あえて「つくり込みすぎない」間取りが魅力。将来を見据えた、余白ある暮らしの土台をご覧ください。
Point 1:暮らしの中心に、光とつながりを生む“中庭”
LDKの真ん中に設けられた中庭が、室内にたっぷりの光と風を届けます。リビングとダイニングの両方からアクセスできる位置にあり、視線の抜けも◎。家の中心が明るくなるだけでなく、空間に広がりとリズムが生まれます。
Point 2:キッチンから洗面・浴室まで一直線!家事ラク動線
キッチン背面には大容量のファミリークローゼットを配置し、さらにその奥には洗面・脱衣・浴室をまとめてレイアウト。料理・洗濯・収納がひとつながりの動線上にあるから、効率よく家事がこなせます。
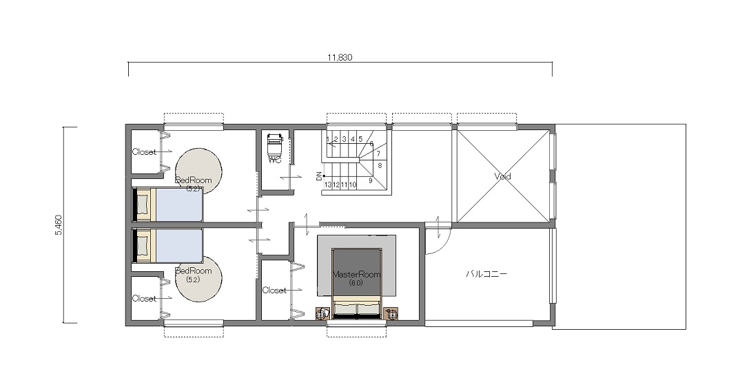
Point 3:2階は“未完成”からはじめる自由空間
2階は今後の暮らしに合わせて変えていける“余白空間”。将来的に仕切って部屋数を増やすのもよし、趣味スペースやセカンドリビングとして使うのも◎。最初から完成させすぎないことで、住む人らしい住まいへ育てていけます。
Point 4:家族それぞれの居場所がある4LDK
1階には和室を備えるのもおすすめ。小さなお子さんのプレイスペースや来客用の寝室として使えるなど、さまざまなシーンで活躍します。収納スペースも適材適所に設置することで、暮らしやすさをしっかり支えます。
「中庭のある家に住みたい」「将来の家族構成がまだ見えないからこそ、変化に対応できる間取りがいい」––そんな方におすすめなのがこのプラン。暮らしの今と未来、どちらにもフィットする“余白のある家づくり”が叶います。
WAKUWAKUハウスの【ホワイトプラン】シミュレーションページで、理想の住まいを具体的にイメージしてみませんか?
▶シミュレーションはこちら

