こんにちは!大阪市で「ワクワクできる家づくり」を手がけるWAKUWAKUハウスです♪
当社の強みのひとつとして、「設計・間取りの提案力」が挙げられます。
お客さまから詳しく(そして楽しく♪)ヒアリングさせていただいた内容を元に、土地の広さや形状を最大限活かしながら、将来を見据えた設計・間取りのご提案を心がけています。
今回ご紹介するのは、当社の規格住宅「ホワイトプラン」の一例です。いまの暮らしにちょうどよく、これからの暮らしにもしなやかに対応してくれる、柔軟さが魅力の間取りです。
Point 1:コンパクトなのに、しっかり快適
コンパクトなサイズながら、1階には19.7帖のLDKに加え、5帖の和室、パントリーや収納スペース、独立したトイレも完備。生活動線はコンパクトに、でも圧迫感なくゆとりを持って暮らせる設計が魅力です。
来客時には和室を客間として使ったり、将来的に親御さんとの同居を想定したりと、多目的に活用できるのも嬉しいポイント。キッチン横にはパントリー、リビング側にも収納があり、暮らしの小さなストレスを減らしてくれます。
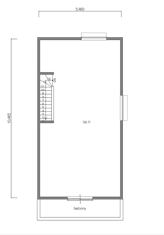
Point 2:「まだ決めない」という選択肢
2階は32.7帖の大空間。あえて最初から細かく仕切らず、将来のライフスタイルに合わせて自由に使える余白を残した設計です。たとえば、お子さまが小さいうちは広々としたプレイスペースとして。成長に合わせて個室をつくったり、趣味や仕事部屋を加えたりも可能です。この「最初からつくり込まない」余白が、暮らしに変化と自由をもたらしてくれます。
Point 3:デフォルトは“シンプル”、だけど…
外観はミニマルで美しいシルエット。間取りや設備はあくまで「ベース」として設計されているため、水廻りの位置変更や仕切りの追加なども柔軟に対応できます。「もっとこうしたい」「ここにこだわりたい」など、理想の暮らしに合わせてカスタマイズしていけるのがホワイトプランの大きな特長。規格住宅でありながら、“私たちらしい家”を叶える自由度を持ち合わせています。
たとえば以下のように、水廻り設備をすべて2階に配置してより広々としたLDKにしたり、2階を用途によって細かく仕切ることも可能です。
今回ご紹介した間取りは、WAKUWAKUハウスのホームページにてシミュレーション体験が可能です。広さや設備、価格まで自由にカスタマイズして、理想の住まいを探してみてください。
▶シミュレーションはこちら

