こんにちは!大阪市で「ワクワクできる家づくり」を手がけるWAKUWAKUハウスです♪
当社の強みのひとつとして、「設計・間取りの提案力」が挙げられます。
お客さまから詳しく(そして楽しく♪)ヒアリングさせていただいた内容を元に、土地の広さや形状を最大限活かしながら、将来を見据えた設計・間取りのご提案を心がけています。
今回ご紹介するのは、当社の規格住宅「ホワイトプラン」の一例です。今の暮らしにちょうどよく、これからの暮らしにもしなやかに対応してくれる、柔軟さが魅力の間取りです。
Point 1:都市型2階建ての魅力を最大限に

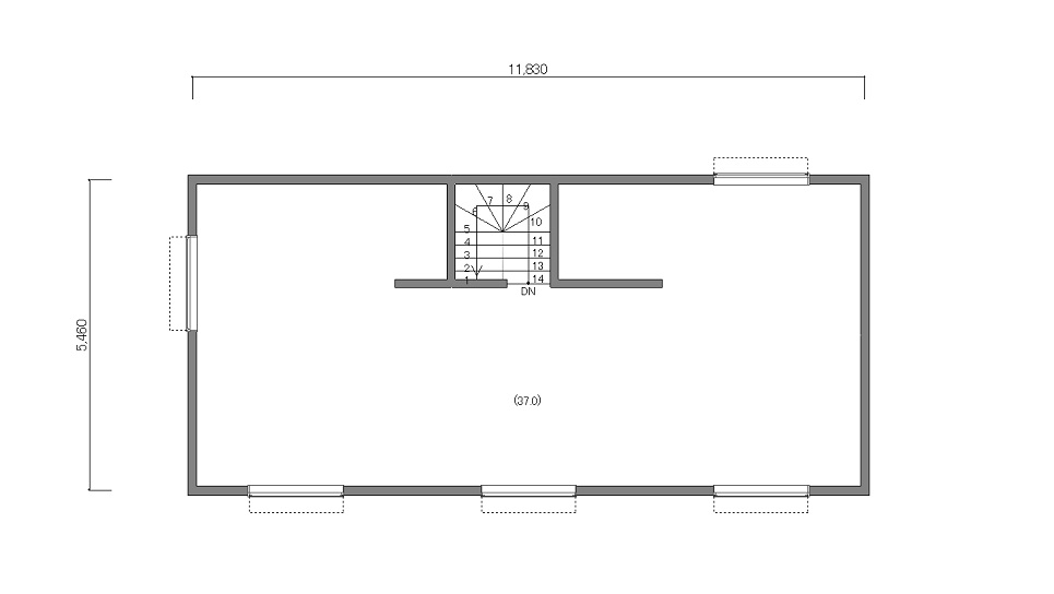
インナーガレージ付きの2階建て住宅。車を敷地内にしっかり収めたいというニーズにも応えつつ、狭さを感じさせない空間づくりが特徴です。
1階にはLDKと水まわりを配置。洗面室と浴室はリビング奥にコンパクトにまとまり、玄関からの動線もスムーズ。キッチン横には収納とパントリーを配置し、毎日の家事効率にも配慮しています。
インナーガレージの上部は吹抜けにすることも可能。日当たりが制限されがちな都市型住宅でも、リビングにたっぷりと光が届くようになります。
Point 2:家族構成に合わせて変化する“育てる間取り”
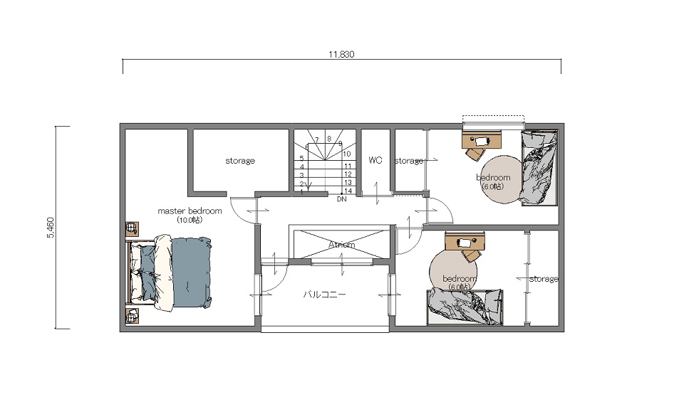
2階は、将来的な家族構成やライフスタイルの変化に柔軟に対応できるよう、最初はまっさらな大空間として設計。必要になったときに個室や収納を追加できる「余白」が用意されています。
2階のアレンジの一例です。一部にバルコニーをつくり、3つの個室と収納をつくる余裕もあります。必要なときに、必要に応じて空間をつくり変えることができる可変性の高さが、最大の魅力。子どもの成長や家族構成の変化に合わせて、空間を“育てていく”──それがWAKUWAKUハウスの間取り設計の考え方です。
今回ご紹介した間取りは、WAKUWAKUハウスのホームページにてシミュレーション体験が可能です。広さや設備、価格まで自由にカスタマイズして、理想の住まいを探してみてください。
▶シミュレーションはこちら

