こんにちは!大阪市で「ワクワクできる家づくり」を手がけるWAKUWAKUハウスです♪
当社の強みのひとつとして、「設計・間取りの提案力」が挙げられます。
お客さまから詳しく(そして楽しく♪)ヒアリングさせていただいた内容を基に、土地の広さや形状を最大限活かしながら、将来を見据えた設計・間取りのご提案を心がけています。
今回ご紹介するのは、当社の規格住宅「ホワイトプラン」の一例。庭(デッキ)に面したLDKを中心にした、ペットのいるお家にも嬉しい間取りです。
Point.1:LDKを中心に、無駄のない暮らしやすさ
1階はLDK18帖を主役にしたシンプルな構成。必要以上に壁や建具を設けず、コンパクトな動線設計になっています。キッチンからダイニング、そしてリビングまで視線が抜けやすく、同じ面積でも広く感じられます。
また、キッチン横にはパントリーを配置。買い置きやストック、ペット用品の収納場所としても活躍し、生活感を隠しやすいのがポイントです。玄関にはSIC(シューズインクローク)を設け、外で使う物を玄関まわりで完結できるようにしました。
Point.2:庭に面したリビングで、ペットも家族ものびのび
このプランの見どころのひとつが、LDKから庭(デッキ)へつながるレイアウトです。リビング前に外部空間を確保することで、室内にいながら外の気配を感じられ、ペットにとっても心地よい居場所になります。日向ぼっこ、外遊び後の足ふき、ちょっとした気分転換など、暮らしの幅が自然と広がるイメージです。
さらにアレンジプランでは、階段下に“ペットスペース(約1帖)”も確保。ペットが落ち着ける場所をつくったり、ケージ・トイレ置き場をまとめたりと、暮らし方に合わせて柔軟に使えます。
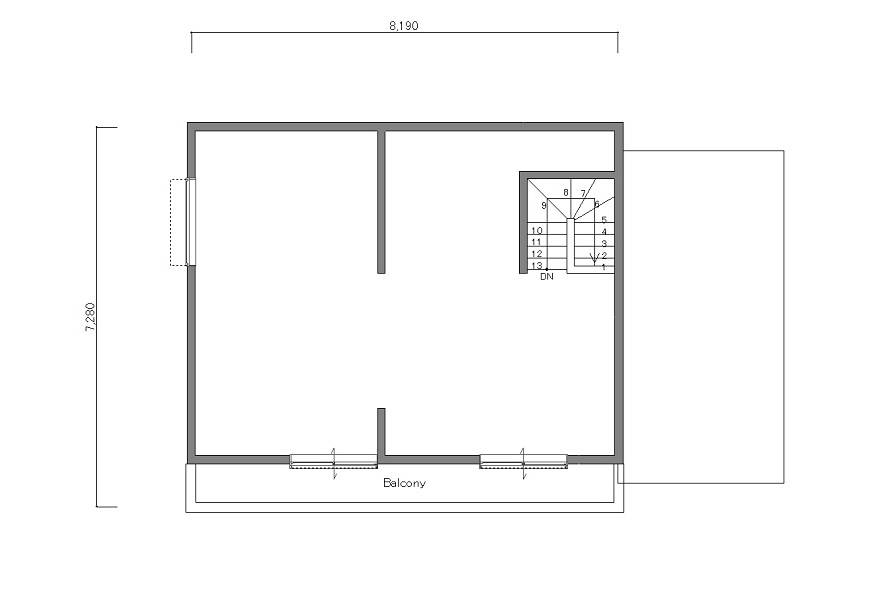
Point.3:“今”と“将来”で使い方を変えられるプラン
2階は、ライフスタイルに合わせて変えられる設計が魅力です。ベースプランでは大きな空間として確保し、趣味室・ワークスペース・セカンドリビングのように使うことも可能。お子さまの成長や働き方の変化に合わせて、必要になったタイミングで個室化するという考え方もできます。
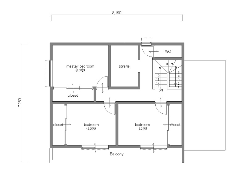
アレンジプランでは、主寝室(6帖)+子ども部屋(5.2帖)×2室の3室構成に加え、2階トイレと収納(ストレージ)も確保。バルコニーに面した明るさを活かしつつ、各室にクローゼットを設けて「片付く個室」に仕上げています。
庭に面したLDKで、ペットも家族も心地よく過ごせる1階。家事が回る水まわり配置と、SIC・パントリーなど収納の要点を押さえた“整う間取り”。そして2階は、オープンに使うことも、将来3室に分けることもできる可変性が強みです。
限られた建物サイズでも、暮らしの質は十分に上げられます。WAKUWAKUハウスなら、ペットとの暮らし方や将来の家族構成まで見据えながら、そのご家庭にとっての「ちょうどいい最適解」を一緒に組み立てていきます。

